
Otterlaan 114
9675 LV Winschoten
114 m2 426 m3 5 kamers
Vraagprijs € 195.000 Kosten koper
Onder bod
Onder bod
Omschrijving
Ruime tussenwoning in kindvriendelijke woonwijk!
Deze tussenwoning is gelegen op een fijne locatie in Winschoten, in een rustige en kindvriendelijke buurt. Scholen, winkels en het stadspark liggen op loopafstand en via de brug wandel of fietst je zo naar het recreatiegebied van de Blauwestad.
De woning biedt een praktische indeling. Op de eerste verdieping bevinden zich 3 comfortabele slaapkamers en een badkamer. De vaste trap naar zolder geeft toegang tot een 4e slaapkamer, perfect te gebruiken als tienerkamer, thuiskantoor of hobbyruimte.
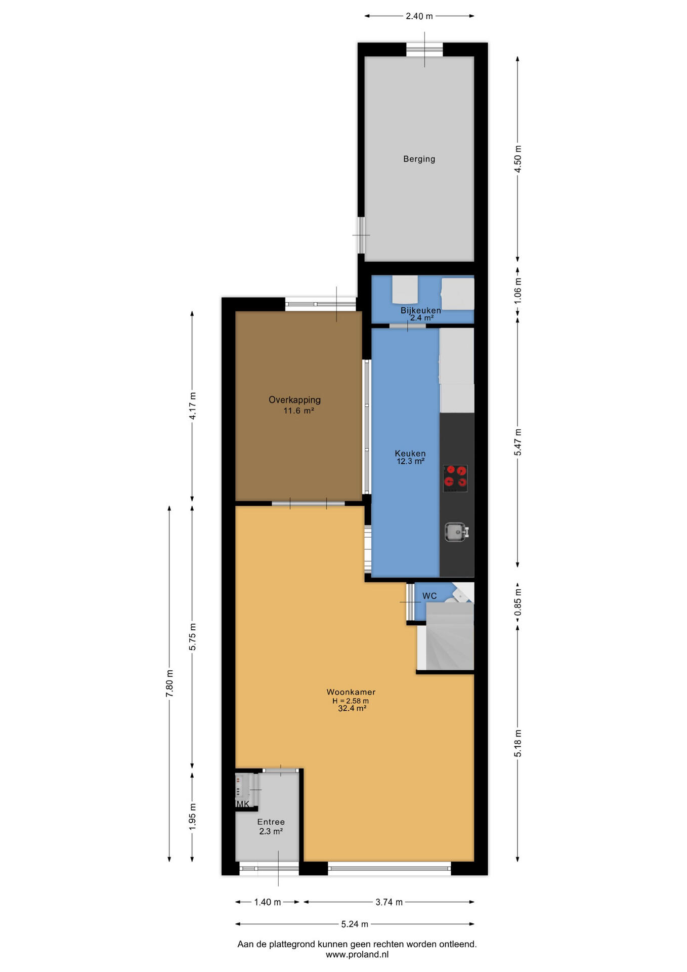
Op de begane grond treft je een woonkamer met een overkapping aan de achterzijde aan. De moderne keuken is in 2024 geplaatst en voorzien van comfort en inbouwapparatuur.
Voor deze woning is een eigen website gemaakt: otterlaan114.nl. Hier vindt u uitgebreide informatie over deze woning zoals bijvoorbeeld de kenmerken, fullscreen foto's, buurtinformatie, streetview en de zonnegrens.
Begane grond:
Entree in de hal met toegang naar de woonkamer. De woonkamer (ca. 32 m²) beschikt over openslaande deuren naar de dichte overkapping (ca. 11.5 m²) aan de achterzijde. De moderne, dichte keuken (ca. 12 m²) is in 2024 geplaatst en voorzien van diverse inbouwapparatuur. Vanuit de keuken is de praktische bijkeuken bereikbaar.
Verdieping:
Op deze verdieping bevinden zich 3 slaapkamers (resp. ca. 7.5 m², 9.5 m² en 12.5 m²), een overloop met inbouwkast en een badkamer (ca. 3 m², voorzien van toilet, douche en wastafelmeubel).
Zolder:
Via een vaste trap is de zolder bereikbaar, waar een 4e slaapkamer (ca. 11.5 m²) is gerealiseerd met overloop. Deze ruimte is ideaal als tienerkamer, werkkamer of logeerverblijf.
Tuin:
De achtertuin is gelegen op het zuiden. Er is een houten tuinhuis en een aangebouwde houten berging (voorzien van elektra) aanwezig.
Informatie:
De woning heeft muurisolatie, dakisolatie en deels dubbele beglazing en is voorzien van een cv-combiketel (eigendom, AWB, 2006).
Deze tussenwoning is gelegen op een fijne locatie in Winschoten, in een rustige en kindvriendelijke buurt. Scholen, winkels en het stadspark liggen op loopafstand en via de brug wandel of fietst je zo naar het recreatiegebied van de Blauwestad.
De woning biedt een praktische indeling. Op de eerste verdieping bevinden zich 3 comfortabele slaapkamers en een badkamer. De vaste trap naar zolder geeft toegang tot een 4e slaapkamer, perfect te gebruiken als tienerkamer, thuiskantoor of hobbyruimte.
Op de begane grond treft je een woonkamer met een overkapping aan de achterzijde aan. De moderne keuken is in 2024 geplaatst en voorzien van comfort en inbouwapparatuur.
Voor deze woning is een eigen website gemaakt: otterlaan114.nl. Hier vindt u uitgebreide informatie over deze woning zoals bijvoorbeeld de kenmerken, fullscreen foto's, buurtinformatie, streetview en de zonnegrens.
Begane grond:
Entree in de hal met toegang naar de woonkamer. De woonkamer (ca. 32 m²) beschikt over openslaande deuren naar de dichte overkapping (ca. 11.5 m²) aan de achterzijde. De moderne, dichte keuken (ca. 12 m²) is in 2024 geplaatst en voorzien van diverse inbouwapparatuur. Vanuit de keuken is de praktische bijkeuken bereikbaar.
Verdieping:
Op deze verdieping bevinden zich 3 slaapkamers (resp. ca. 7.5 m², 9.5 m² en 12.5 m²), een overloop met inbouwkast en een badkamer (ca. 3 m², voorzien van toilet, douche en wastafelmeubel).
Zolder:
Via een vaste trap is de zolder bereikbaar, waar een 4e slaapkamer (ca. 11.5 m²) is gerealiseerd met overloop. Deze ruimte is ideaal als tienerkamer, werkkamer of logeerverblijf.
Tuin:
De achtertuin is gelegen op het zuiden. Er is een houten tuinhuis en een aangebouwde houten berging (voorzien van elektra) aanwezig.
Informatie:
De woning heeft muurisolatie, dakisolatie en deels dubbele beglazing en is voorzien van een cv-combiketel (eigendom, AWB, 2006).
Kenmerken
Overdracht
Status
Onder bod
Vraagprijs
Vraagprijs € 195.000 kosten koper
Aanvaarding
In overleg
Bouwvorm
Bouwjaar
1975
Bouwvorm
Bestaande bouw
Indeling
Woonoppervlakte
114m2
Inhoud
426m3
Aantal kamers
5
Woning
Soort
Eengezinswoning
Type
Tussenwoning
Ligging
Aan rustige weg, in woonwijk
Energie
Klasse
C
Datum
19-09-2035
Isolatievormen
Dakisolatie, muurisolatie, gedeeltelijk dubbel glas
Verwarming
Verwarmingssoorten
Cv ketel
Warmwatersoorten
Cv ketel
CV Combiketel
1
CV ketel type
Awb
CV ketel bouwjaar
2006
CV ketel brandstof
Gas
CV ketel eigendom
Eigendom
Overig
Permanente woning
Ja
Onderhoud binnen
Redelijk
Onderhoud buiten
Redelijk
Huidig gebruik
Woonruimte
Huidige bestemming
Woonruimte
Onderhoudswaardering binnen
Redelijk
Onderhoudswaardering buiten
Redelijk
Voorzieningen wonen
Mechanische ventilatie, tv kabel, dakraam, glasvezel kabel
Dak
Type
Dwarskap
Materialen
Pannen
Tuin
Kwaliteit
Normaal
Types
Achtertuin, voortuin
Hoofdtuin type
Achtertuin
Hoofdtuin locatie
Zuid
Hoofdtuin lengte
9,00m
Hoofdtuin breedte
5,00m
Hoofdtuin oppervlakte
45m2
Hoofdtuin achterom
Ja
Parkeren en garages
Garage soorten
Geen garage
Parkeerfaciliteiten
Openbaar parkeren
Schuren en bergingen
Aantal
1
Soort
Aangebouwd hout
Isolatievormen
Geen isolatie
Voorzieningen
Voorzien van elektra



























