
Hoofdweg 64
9681 AJ Midwolda
142 m2 558 m3 5 kamers
Vraagprijs € 369.000 Kosten koper
Beschikbaar
Beschikbaar
Omschrijving
Een vrijstaand woonhuis, type semi-bungalow, met slaapkamers en badkamer op de begane grond!!
In het rustige dorp Midwolda staat dit vrijstaande woonhuis met energielabel B en een heerlijke, op het zuiden gerichte, achtertuin. De woning beschikt over energielabel B en is al grotendeels verduurzaamd met onder andere vloer- en muurisolatie en zonnepanelen. Hierdoor zijn de energielasten lager en is de woning klaar voor de toekomst. De basis is goed, terwijl er volop mogelijkheden zijn om de woning naar eigen wens te moderniseren en te personaliseren.
Op loop- en fietsafstand ligt het recreatiegebied De Blauwe Stad, met zijn uitgestrekte water, wandelroutes en strandjes, ideaal voor liefhebbers van natuur- en buitenactiviteiten. Daarnaast biedt Midwolda een gezellige dorpskern met voorzieningen. En natuurlijk wonen op steenworp afstand van de Ennemaborg: een unieke kans om te genieten van rust, historie en groen, midden in Midwolda.
Via de nabije uitvalswegen zijn binnen korte tijd de plaatsen Winschoten en Groningen te bereiken met de auto.
De fotopresentatie bevat zowel actuele foto’s als artist impressions ter illustratie van de mogelijkheden van de woning.
Voor deze woning is een eigen website gemaakt: hoofdweg64.nl. Hier vindt u uitgebreide informatie over deze woning zoals bijvoorbeeld de kenmerken, fullscreen foto's, buurtinformatie, streetview en de zonnegrens.
Begane grond:
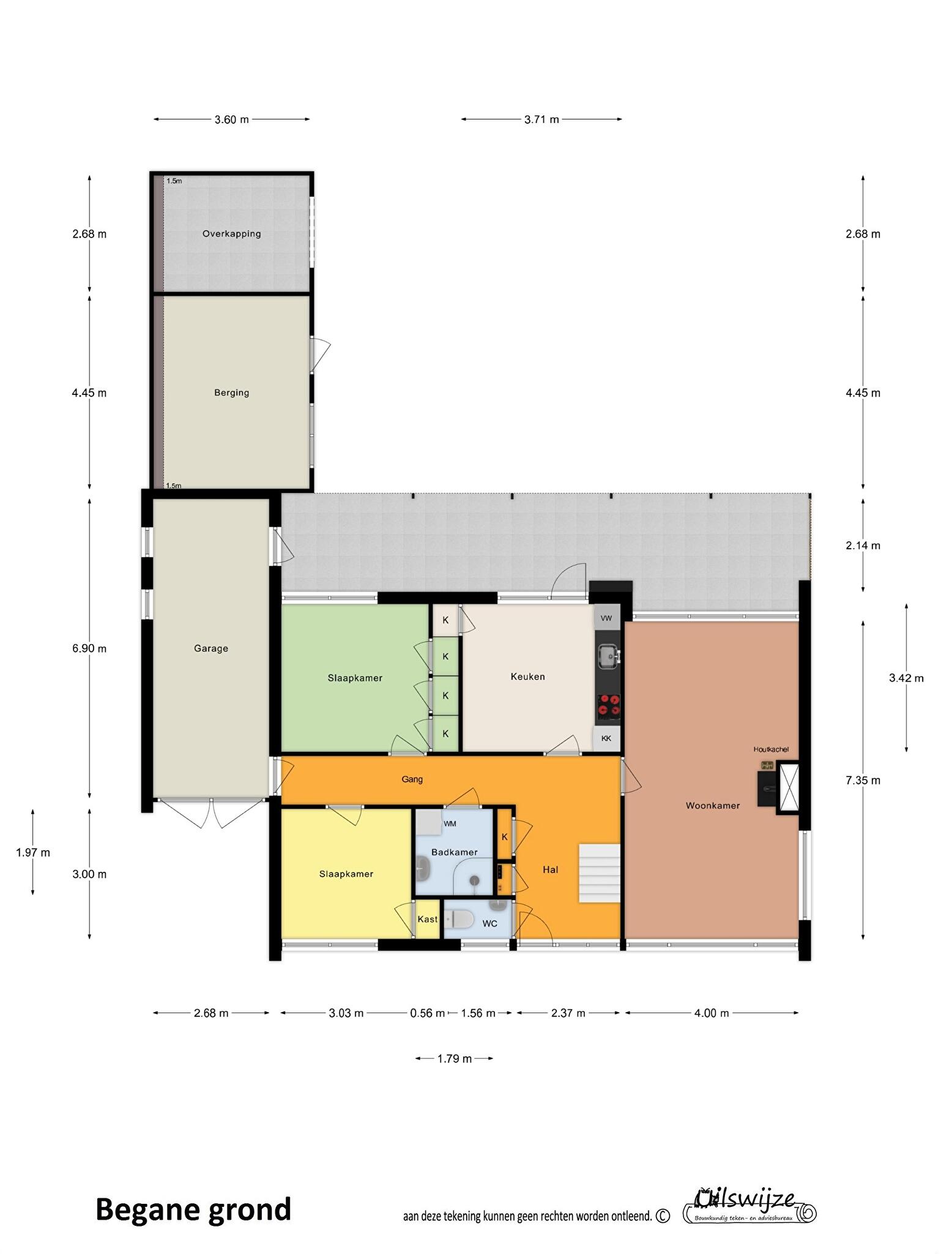
De begane grond beschikt over een lichte woonkamer, een dichte woonkeuken (voorzien van enige inbouwapparatuur en een inbouwkast), 2 slaapkamers met inbouwkasten en een badkamer (voorzien van een douche en vaste wastafel), wat de woning ook geschikt maakt voor gelijkvloers wonen.
Verdieping:
Op de verdieping bevinden zich naast de overloop nog 2 slaapkamers met toegang tot veel bergruimte naast de slaapkamers, een toiletruimte, een bergkast en stookruimte.
Garage en tuin:
Er is een aangebouwde garage, perfect voor opslag, hobbyruimte of het stallen van de auto, met een binnendoor naar het woonhuis.
Achter de garage bevindt zich een aangebouwde stenen berging en een overkapping.
De ruime achtertuin op het zuiden biedt volop privacy en zon, een heerlijke plek om te ontspannen of te tuinieren.
Bijzonderheden:
- Vrijstaand woonhuis met energielabel B
- 2 Slaapkamers en badkamer op de begane grond
- Royale achtertuin op het zuiden
Informatie:
- De woning is voorzien van dak-, muur- en vloerisolatie en heeft grotendeels dubbel glas.
- Er is een cv-combiketel aanwezig (Remeha, 2021, eigendom).
- In 2023 zijn er 8 zonnepanelen geplaatst.
- De kozijnen, de gevelbekleding en dakgoot aan de voorzijde van de woning zijn van kunststof (onderhoudsvriendelijk).
- De as is, where is-clausule is van toepassing, alsmede de niet zelfbewonersclausule.
- De akte van levering dient te passeren bij Notaris Groen in Scheemda.
Kortom: een ruim en levensloopbestendig huis met veel potentie, gelegen op een fijne plek in het mooie Oldambt.
In het rustige dorp Midwolda staat dit vrijstaande woonhuis met energielabel B en een heerlijke, op het zuiden gerichte, achtertuin. De woning beschikt over energielabel B en is al grotendeels verduurzaamd met onder andere vloer- en muurisolatie en zonnepanelen. Hierdoor zijn de energielasten lager en is de woning klaar voor de toekomst. De basis is goed, terwijl er volop mogelijkheden zijn om de woning naar eigen wens te moderniseren en te personaliseren.
Op loop- en fietsafstand ligt het recreatiegebied De Blauwe Stad, met zijn uitgestrekte water, wandelroutes en strandjes, ideaal voor liefhebbers van natuur- en buitenactiviteiten. Daarnaast biedt Midwolda een gezellige dorpskern met voorzieningen. En natuurlijk wonen op steenworp afstand van de Ennemaborg: een unieke kans om te genieten van rust, historie en groen, midden in Midwolda.
Via de nabije uitvalswegen zijn binnen korte tijd de plaatsen Winschoten en Groningen te bereiken met de auto.
De fotopresentatie bevat zowel actuele foto’s als artist impressions ter illustratie van de mogelijkheden van de woning.
Voor deze woning is een eigen website gemaakt: hoofdweg64.nl. Hier vindt u uitgebreide informatie over deze woning zoals bijvoorbeeld de kenmerken, fullscreen foto's, buurtinformatie, streetview en de zonnegrens.
Begane grond:
De begane grond beschikt over een lichte woonkamer, een dichte woonkeuken (voorzien van enige inbouwapparatuur en een inbouwkast), 2 slaapkamers met inbouwkasten en een badkamer (voorzien van een douche en vaste wastafel), wat de woning ook geschikt maakt voor gelijkvloers wonen.
Verdieping:
Op de verdieping bevinden zich naast de overloop nog 2 slaapkamers met toegang tot veel bergruimte naast de slaapkamers, een toiletruimte, een bergkast en stookruimte.
Garage en tuin:
Er is een aangebouwde garage, perfect voor opslag, hobbyruimte of het stallen van de auto, met een binnendoor naar het woonhuis.
Achter de garage bevindt zich een aangebouwde stenen berging en een overkapping.
De ruime achtertuin op het zuiden biedt volop privacy en zon, een heerlijke plek om te ontspannen of te tuinieren.
Bijzonderheden:
- Vrijstaand woonhuis met energielabel B
- 2 Slaapkamers en badkamer op de begane grond
- Royale achtertuin op het zuiden
Informatie:
- De woning is voorzien van dak-, muur- en vloerisolatie en heeft grotendeels dubbel glas.
- Er is een cv-combiketel aanwezig (Remeha, 2021, eigendom).
- In 2023 zijn er 8 zonnepanelen geplaatst.
- De kozijnen, de gevelbekleding en dakgoot aan de voorzijde van de woning zijn van kunststof (onderhoudsvriendelijk).
- De as is, where is-clausule is van toepassing, alsmede de niet zelfbewonersclausule.
- De akte van levering dient te passeren bij Notaris Groen in Scheemda.
Kortom: een ruim en levensloopbestendig huis met veel potentie, gelegen op een fijne plek in het mooie Oldambt.
Kenmerken
Overdracht
Status
Beschikbaar
Vraagprijs
Vraagprijs € 369.000 kosten koper
Aanvaarding
In overleg
Bouwvorm
Bouwjaar
1971
Bouwvorm
Bestaande bouw
Indeling
Woonoppervlakte
142m2
Inhoud
558m3
Aantal kamers
5
Woning
Soort
Eengezinswoning
Type
Vrijstaande woning
Energie
Klasse
B
Datum
07-10-2035
Isolatievormen
Dakisolatie, muurisolatie, vloerisolatie, grotendeels dubbelglas
Verwarming
Verwarmingssoorten
Cv ketel
Warmwatersoorten
Cv ketel
CV Combiketel
1
CV ketel type
Remeha
CV ketel bouwjaar
2021
CV ketel brandstof
Gas
CV ketel eigendom
Eigendom
Overig
Permanente woning
Ja
Onderhoud binnen
Redelijk tot goed
Onderhoud buiten
Redelijk tot goed
Huidig gebruik
Woonruimte
Huidige bestemming
Woonruimte
Onderhoudswaardering binnen
Redelijk tot goed
Onderhoudswaardering buiten
Redelijk tot goed
Voorzieningen wonen
Tv kabel, rookkanaal, dakraam, glasvezel kabel, zonnepanelen
Bijzonderheden
Toegankelijk voor ouderen
Dak
Type
Dwarskap
Materialen
Pannen
Tuin
Kwaliteit
Verzorgd
Types
Achtertuin, voortuin, zijtuin
Hoofdtuin type
Achtertuin
Hoofdtuin locatie
Zuid
Hoofdtuin lengte
14,00m
Hoofdtuin breedte
14,50m
Hoofdtuin oppervlakte
203m2
Oppervlakte gebouwgebonden buitenruimte
29
Parkeren en garages
Aantal garages
1
Garage soorten
Aangebouwd steen
Garage lengte
6,90m
Garage breedte
2,68m
Garage oppervlakte
18m2
Garage capaciteit
1
Garage voorzieningen
Verwarming, elektra, water
Parkeerfaciliteiten
Openbaar parkeren, op eigen terrein
Schuren en bergingen
Aantal
1
Soort
Aangebouwd steen
Voorzieningen
Voorzien van verwarming, voorzien van elektra











































